REAL ESTATE DETAIL
横浜市瀬谷区相沢1丁目 新築一戸建て
相鉄本線「瀬谷」駅 徒歩3分
販売価格5,480万円

RECOMMEND POINT この物件のオススメポイント
- 仲介手数料半額
稀少!!瀬谷駅徒歩3分の好立地です!!
カースペース有り☆4LDK☆
2階リビングの勾配天井で解放感抜群で広々☆
OUTLINE
横浜市瀬谷区相沢1丁目
新築一戸建て 【物件概要】
| 所在地 | 横浜市瀬谷区相沢1丁目6-4 | ||
|---|---|---|---|
| 交通 | 相鉄本線「瀬谷」駅 徒歩3分 | ||
| 価格 | 5,480万円 | ||
| 物件番号 | 243252 | 物件種別 | 新築一戸建て |
| 販売棟数 | 全2棟 今回販売2棟 | 土地面積 | 80.91㎡〜84.56㎡ |
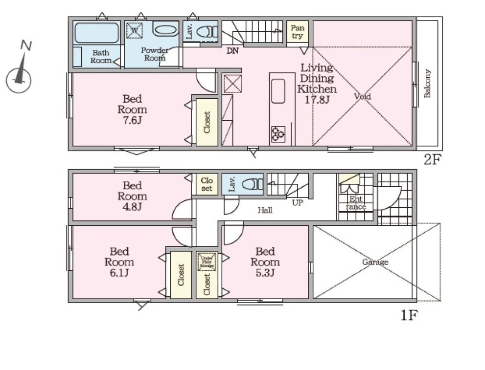
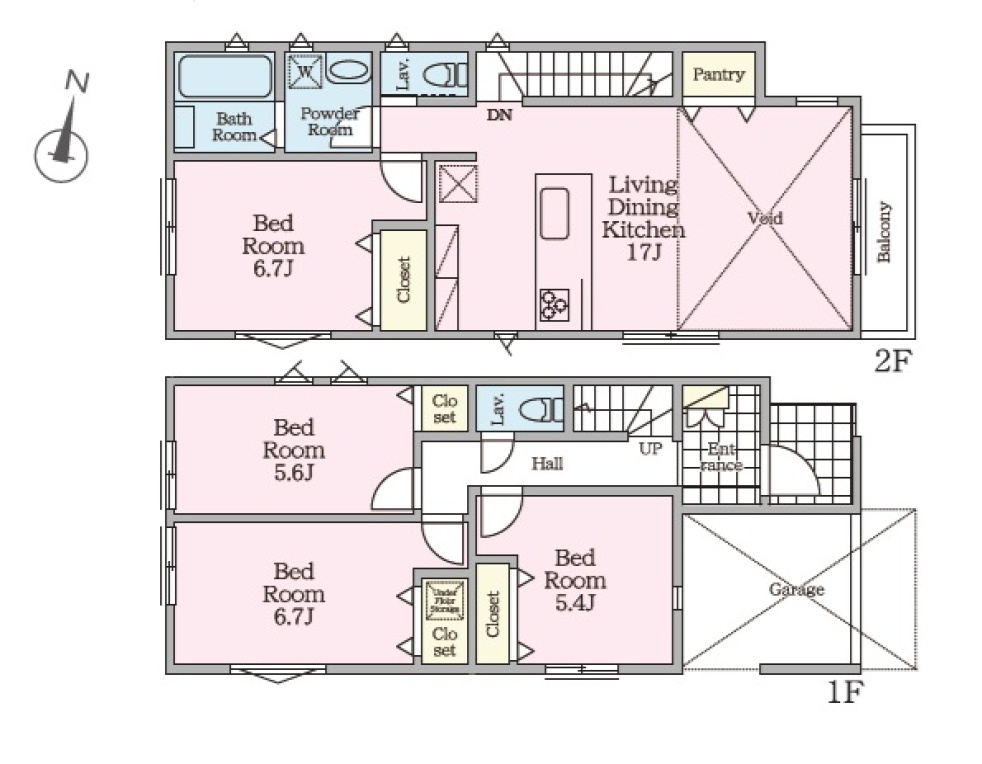
| 建物面積 | 106.20㎡ | 間取 | 4LDK |
| 建物構造 | 木造 2階建 | 完成 | 2026年1月完成予定 |
| 接道状況 | 東 4.00M | 土地権利 | 所有権 |
| 地目 | 宅地 | 建ぺい率 | 60% |
| 容積率 | 200% | 現況 | 建築中 |
| 引渡し時期 | 未定 | 取引態様 | 媒介 |
LOAN CIMULATION
横浜市瀬谷区相沢1丁目
新築一戸建て 【ローンシミュレーション】
物件価格
万円
金利
%
頭金
万円
ボーナス回数
回
ボーナス加算額
万円
返済期間
年
毎月の返済額
※こちらのローンシミュレーションは試算の為、実際のご返済額とは
異なる場合がございますので詳しくは、お問い合わせください。
上記の物件に似ている物件









