REAL ESTATE DETAIL
大和市福田 新築一戸建て
小田急江ノ島線「桜ヶ丘」駅 徒歩14分
販売価格4,690万円(税込)

RECOMMEND POINT この物件のオススメポイント
- 仲介手数料半額
高座渋谷駅・桜ヶ丘駅ともに平坦アプローチ
オーケーストアなど商業施設も近くにありお買い物に便利な立地です。
OUTLINE
大和市福田
新築一戸建て 【物件概要】
所在地 | 大和市福田2367-3 | ||
---|---|---|---|
交通 | 小田急江ノ島線「桜ヶ丘」駅 徒歩14分 | ||
価格 | 4,690万円(税込) | ||
物件番号 | 243323 | 物件種別 | 新築一戸建て |
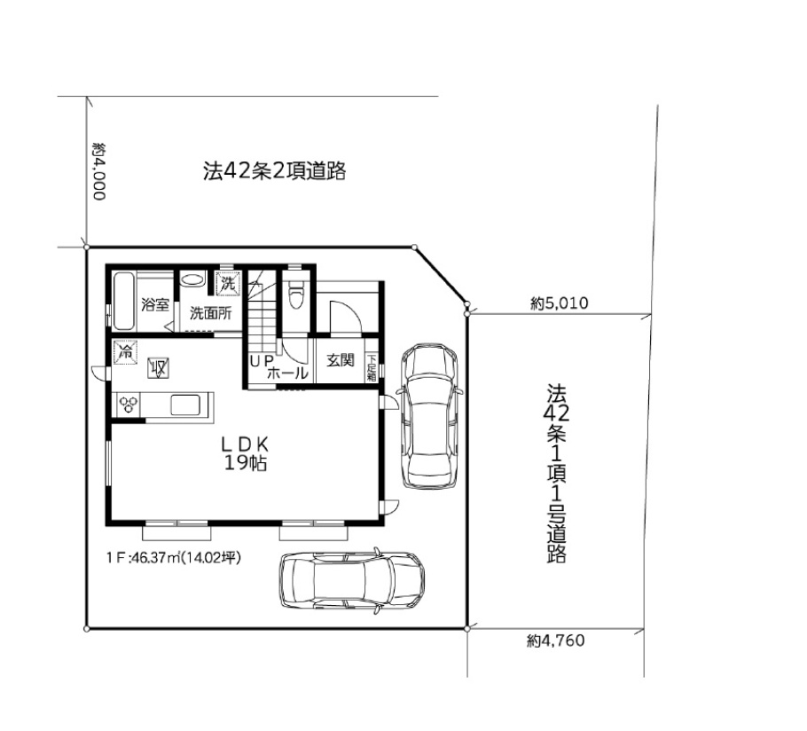
販売棟数 | 全1棟 今回販売1棟 | 土地面積 | 102.22㎡ |
建物面積 | 96.05㎡ | 間取 | 4LDK |
建物構造 | 木造 2階建 | 完成 | 2025年12月完成予定 |
接道状況 | 5.00M 4.00M |
土地権利 | 所有権 |
都市計画 | 市街化区域 | 地目 | 宅地 |
用途地域 | 第一種住居地域 | 建ぺい率 | 70% |
容積率 | 200% | 現況 | 建築中 |
駐車場 | 2台 | 引渡し時期 | 期日指定有 |
取引態様 | 媒介 | ||
設備 | 上水道/公営水道 下水道/本下水 ガス/都市ガス |
LOAN CIMULATION
大和市福田
新築一戸建て 【ローンシミュレーション】
物件価格
万円
金利
%
頭金
万円
ボーナス回数
回
ボーナス加算額
万円
返済期間
年
毎月の返済額
※こちらのローンシミュレーションは試算の為、実際のご返済額とは
異なる場合がございますので詳しくは、お問い合わせください。
上記の物件に似ている物件