REAL ESTATE DETAIL
横浜市瀬谷区南瀬谷1丁目 新築一戸建て
小田急江ノ島線「桜ヶ丘」駅 徒歩28分
販売価格5,480万円(税込)

RECOMMEND POINT この物件のオススメポイント
- 仲介手数料半額
OUTLINE
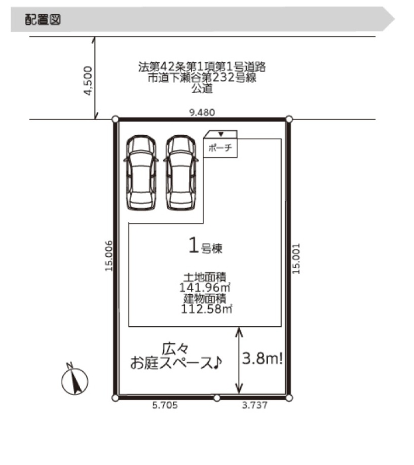
横浜市瀬谷区南瀬谷1丁目
新築一戸建て 【物件概要】
| 所在地 | 横浜市瀬谷区南瀬谷1丁目58-19 | ||
|---|---|---|---|
| 交通 | 小田急江ノ島線「桜ヶ丘」駅 徒歩28分 | ||
| 価格 | 5,480万円(税込) | ||
| 物件番号 | 245235 | 物件種別 | 新築一戸建て |
| 販売棟数 | 全1棟 今回販売1棟 | 土地面積 | 141.96㎡ |
| 建物面積 | 112.58㎡ | 間取 | 4SLDK |
| 建物構造 | 木造 2階建 | 完成 | 2026年2月完成予定 |
| 土地権利 | 所有権 | 地目 | 宅地 |
| 建ぺい率 | 50% | 容積率 | 100% |
| 現況 | 建築中 | 引渡し時期 | 期日指定有 |
| 取引態様 | 媒介 | ||
LOAN CIMULATION
横浜市瀬谷区南瀬谷1丁目
新築一戸建て 【ローンシミュレーション】
物件価格
万円
金利
%
頭金
万円
ボーナス回数
回
ボーナス加算額
万円
返済期間
年
毎月の返済額
※こちらのローンシミュレーションは試算の為、実際のご返済額とは
異なる場合がございますので詳しくは、お問い合わせください。
上記の物件に似ている物件
最近チェックした物件







