REAL ESTATE DETAIL
大和市中央林間西5丁目 新築一戸建て
小田急江ノ島線「中央林間」駅 徒歩12分
販売価格6,180〜6,980万円(税込)

RECOMMEND POINT この物件のオススメポイント
- 仲介手数料半額
大型分譲全8棟☆残り7棟です☆
南道路☆日当たり良好の分譲住宅♪
都内までのアクセスがよく人気の中央林間駅最寄り!!
同社施工完成物件ご案内可能です☆
OUTLINE
大和市中央林間西5丁目
新築一戸建て 【物件概要】
| 所在地 | 大和市中央林間西5丁目 | ||
|---|---|---|---|
| 交通 | 小田急江ノ島線「中央林間」駅 徒歩12分 | ||
| 価格 | 6,180万円(税込)〜6,980万円(税込) | ||
| 物件番号 | 245709 | 物件種別 | 新築一戸建て |
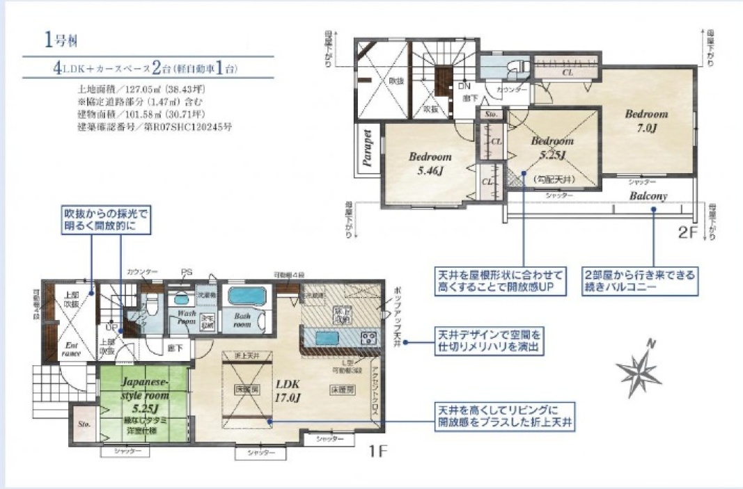
| 販売棟数 | 全8棟 今回販売6棟 | 土地面積 | 127.05㎡〜223.68㎡ |
| 建物面積 | 100.39㎡〜103.74㎡ | 間取 | 4LDK |
| 建物構造 | 木造 2階建 | 完成 | 2026年2月完成予定 |
| 土地権利 | 所有権 | 都市計画 | 市街化区域 |
| 地目 | 宅地 | 用途地域 | 第一種低層住専 |
| 建ぺい率 | 50% | 容積率 | 80% |
| 現況 | 建築中 | 駐車場 | 2台 |
| 引渡し時期 | 期日指定有 | 取引態様 | 媒介 |
| 設備 | 上水道/公営水道 下水道/本下水 ガス/都市ガス |
||
LOAN CIMULATION
大和市中央林間西5丁目
新築一戸建て 【ローンシミュレーション】
物件価格
万円
金利
%
頭金
万円
ボーナス回数
回
ボーナス加算額
万円
返済期間
年
毎月の返済額
※こちらのローンシミュレーションは試算の為、実際のご返済額とは
異なる場合がございますので詳しくは、お問い合わせください。
上記の物件に似ている物件




