REAL ESTATE DETAIL
大和市西鶴間7丁目 新築一戸建て
小田急江ノ島線「南林間」駅 徒歩20分
販売価格4,980万円(税込)

RECOMMEND POINT この物件のオススメポイント
- 仲介手数料半額
- 新着物件
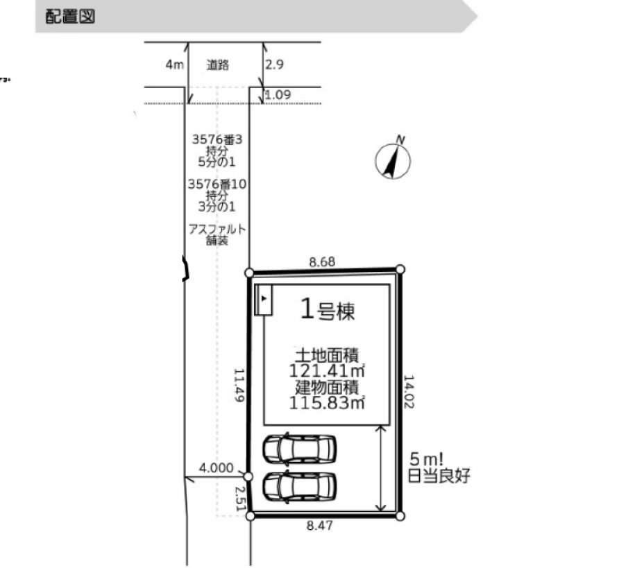
日当たり良好新築2階建て♪
注文住宅のようなオシャレなデザインが魅力のお家です♪♪
OUTLINE
大和市西鶴間7丁目
新築一戸建て 【物件概要】
| 所在地 | 大和市西鶴間7丁目 | ||
|---|---|---|---|
| 交通 | 小田急江ノ島線「南林間」駅 徒歩20分 | ||
| 価格 | 4,980万円(税込) | ||
| 物件番号 | 248861 | 物件種別 | 新築一戸建て |
| 販売棟数 | 全1棟 今回販売1棟 | 土地面積 | 121.41㎡ |
| 私道面積 | 2.18㎡別に有 | 建物面積 | 115.83㎡ |
| 間取 | 4SLDK | 建物構造 | 木造 2階建 |
| 完成 | 2026年7月完成予定 | 接道状況 | 北 4.00M道路に2.00M接道 |
| 土地権利 | 所有権 | 都市計画 | 市街化区域 |
| 地目 | 宅地 | 用途地域 | 第一種低層住専 |
| 建ぺい率 | 50% | 容積率 | 80% |
| 現況 | 建築中 | 駐車場 | 2台 |
| 引渡し時期 | 相談 | 取引態様 | 媒介 |
| 設備 | 上水道/公営水道 下水道/本下水 ガス/都市ガス |
||
LOAN CIMULATION
大和市西鶴間7丁目
新築一戸建て 【ローンシミュレーション】
物件価格
万円
金利
%
頭金
万円
ボーナス回数
回
ボーナス加算額
万円
返済期間
年
毎月の返済額
※こちらのローンシミュレーションは試算の為、実際のご返済額とは
異なる場合がございますので詳しくは、お問い合わせください。
上記の物件に似ている物件


